16 Viviendas pareadas. Gorraiz

2010 - 2012

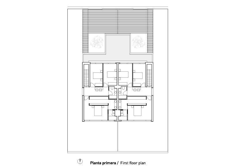
Ver planos

Ubicación

Gorraiz (Navarra). España

Cliente

Inmovest S.L.

Coautor

Begoña García Gordo, Juan Carlos Linares Fernández, Yoana Urralburu Soto

Autor fotografía / Infografía

Mikel Muruzabal

Superficie construida

2.944 m2

Presupuesto

2.566.920,00 €

Premios

Finalista Premios COAVN 2013. Categoría edificiación