Apartamentos Tutelados Iturrama

2001 - 2005

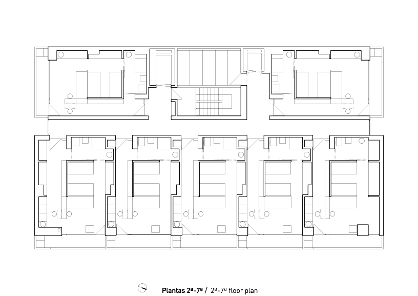
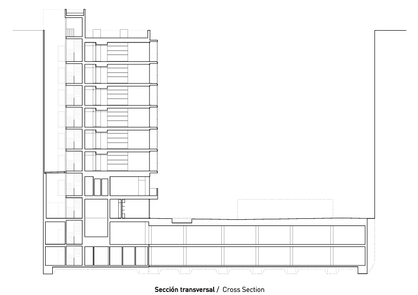
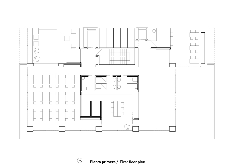
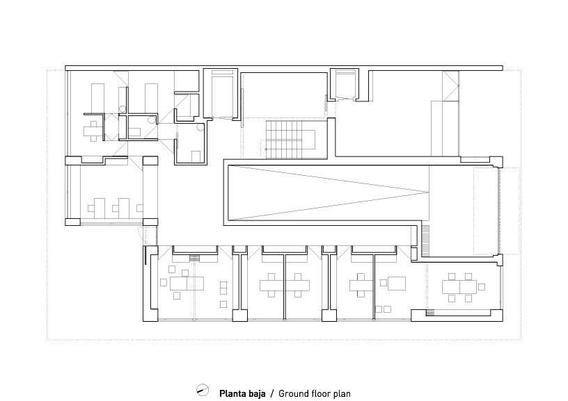
Ver planos

Ubicación

Pamplona, España

Cliente

Ayuntamiento de Pamplona

Coautor

Ana Arriazu

Autor fotografía / Infografía

José Manuel Cutillas

Superficie construida

4.538,90 m2

Presupuesto

2.675.895,60 €

Premios

Primer Premio Concurso Ayuntamiento de Pamplona