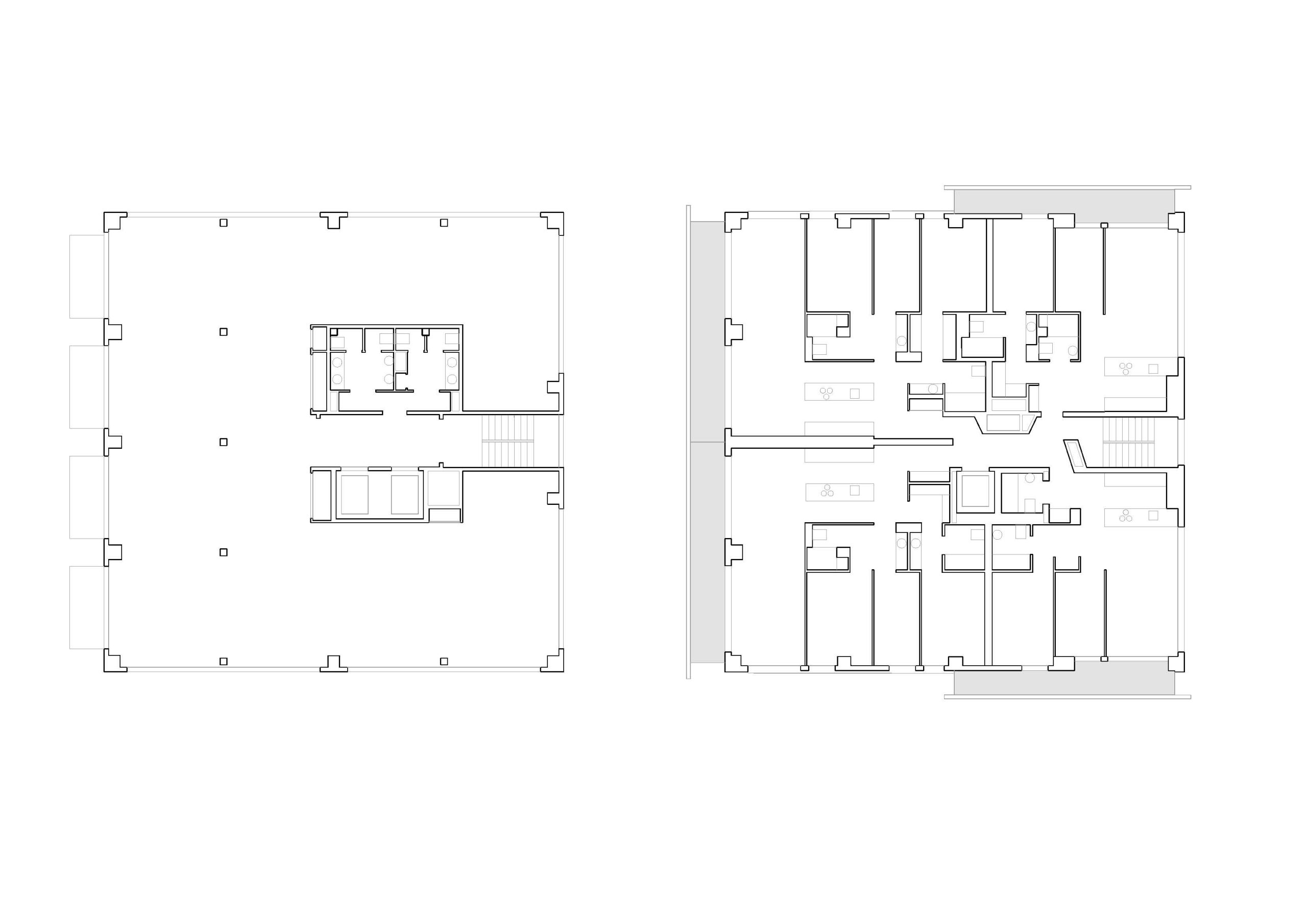
Rehabilitacion edificio MAPFRE para 24 viviendas

2023 - 2024

Ver planos

Ubicación

Avenida de la Rioja 3 Pamplona

Cliente

Promociones ABAIGAR Yamaguchi SL

Coautor

Maria Teresa Apezteguia, Juan Carlos Linares, Silvia Saldaña

Autor fotografía / Infografía

Maria Azcárate