Vivienda Unifamiliar Gorraiz 1

1997 - 1998

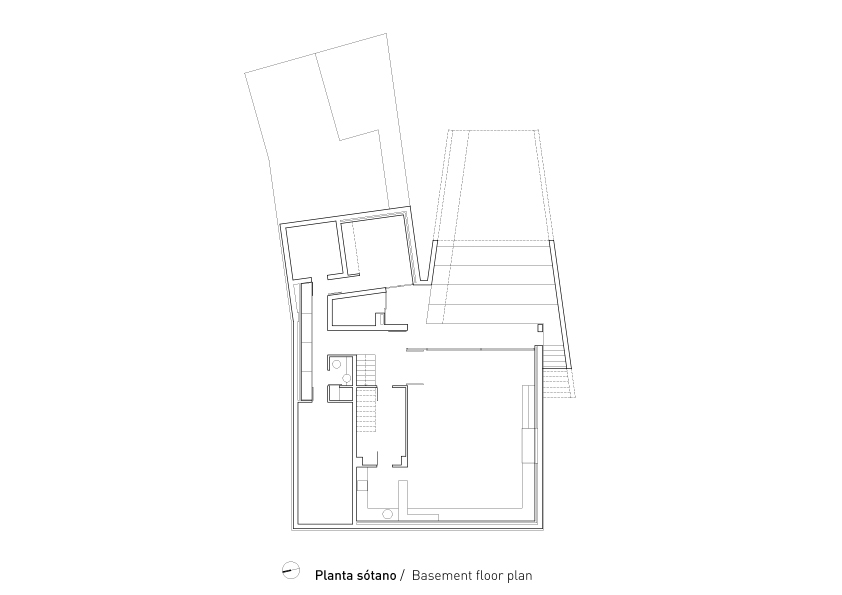
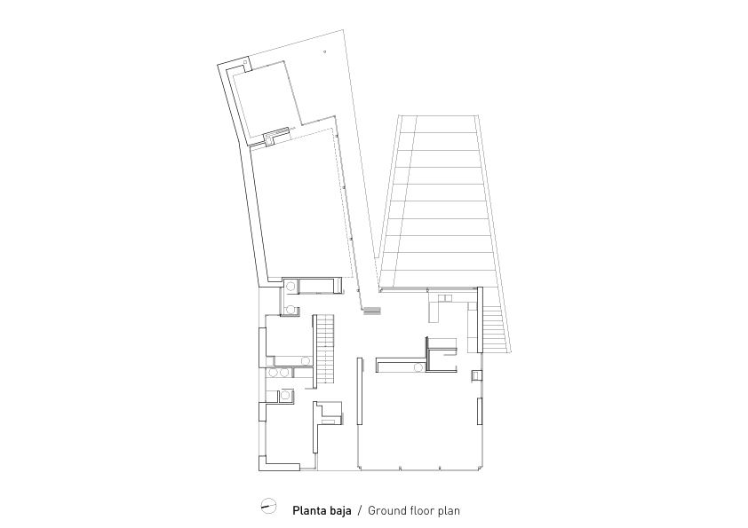
Ver planos

Ubicación

Gorraiz (Navarra). España

Cliente

Promotor privado

Coautor

Ana Arriazu

Autor fotografía / Infografía

Luis Prieto

Superficie construida

562,83 m2

Premios

Premio COAVN 1999. Categoría residencial